Main Photo

22 Total Photos [Click to View All]

Main Photo
Main Photo

724 W Grace Street, Unit 1 Chicago, IL 60613

$750,000
Active / MLS# 12593097 / Residential - Condominium / Chicago
3 Beds
2 Baths
1 Half Bath
2700 SqFt

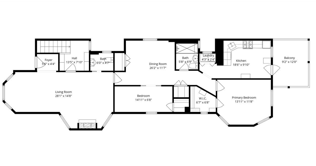
WATCH FULL WALK THRU VIDEO ON VTOUR BUTTON (LOOK AT FLOOR PLAN ON PICS). Step back in time in this amazing vintage home just blocks away from the lake. This 3 bed + office home offers over 2,700 sqft and features all the charm of a pre-war vintage duplex with the amenities desired for today's living. First floor has a massive 28-foot-long living room with large south-facing bay windows and a vintage fireplace, formal dining room, library area, second bedroom, and a large primary bedroom with walk-in closet, finished off with an updated kitchen that walks out to a private deck space and brick paver backyard. Lower level has a huge family room, office, bedroom with office area, and over 150 sqft of storage. Gut renovation was completed in 1994; since then, parapet wall was rebuilt 5 years ago, front half of the roof has been replaced, electrical has been updated, bathrooms upgraded, first floor laundry added, and the entire unit has been freshly painted. Garage parking included. HOA $600/month. Taxes $8,584. Six windows need to be replaced; estimate attached in additional information.

Read More » Read Less »

Baird & Warner New Client Care Team Agent Cell: 312.847.5702 Email

Request Tour

Mortgage Calculator

%
years/fixed
yearly
yearly (est.)
yearly
(Payments are an estimate and may vary by lender)

Estimated Payment

$ 3,200.75 per month $1,666.67 Principal & Interest $715.33 Property Tax $218.75 Homeowner's Insurance $600 HOA Fee
Get your competitive financing options.

Property Details

Property Type: Residential - Condominium
Basement: Yes
Basement: Finished, Full
Cooling: Central Air
Fireplaces: 1
Garage: 1
Heating: Natural Gas, Forced Air
Lot Size: condo
Roof Type: Asphalt
Stories: 3.0
Taxes: $8,584

Amenities

1st Floor Bedroom
1st Floor Full Bath
Storage
Built-in Features
Walk-In Closet(s)
Bookcases
High Ceilings
Historic/Period Mlwk
Special Millwork

Feature Descriptions

Additional rooms: Office, Library, Utility Room-Lower Level, Walk In Closet, Balcony/Porch/Lanai
Appliances: Range, Microwave, Dishwasher, Refrigerator, Washer, Dryer, Stainless Steel Appliance(s)
Association Includes: Water, Electricity, Insurance, Exterior Maintenance, Lawn Care
Dining Room: Separate
Exterior: Brick, Limestone
Fireplace: Wood Burning
Fireplace Location(s): Living Room
HOA Fee: 600/ Monthly
Laundry: Main Level, Washer Hookup, Gas Dryer Hookup, In Unit, Laundry Closet
Lot Dimensions: condo
Parcel#: 14211020411001
Parking: Garage Door Opener, Yes, Garage Owned, Detached, Garage
Pet Allowed: Cats OK, Dogs OK
Sewer: Public Sewer
Total Rooms: 9
Township: Lake View
Water: Lake Michigan, Public

Room Information

Office: 11X9
Library: 13X7
Walk In Closet: 7X7
Balcony/Porch/Lanai: 9X10
Walk In Closet: 8X6
Bedroom 2: 14X7
Bedroom 3: 16X10
Dining Room: 10X12
Family Room: 30X19
Kitchen: 18X10
Laundry: 4X4
Living Room: 15X28
Primary Bedroom: 14X12

Schools

School District: District 299

Disclaimer: The accuracy of all information regardless of source, including but not limited to square footage and lot size, is deemed reliable but not guaranteed nor warranted and should be personally verified through personal inspection by and/or with the appropriate professionals.

Location

See details and scored characteristics about this location.

Listing Office: Jameson Sotheby's Int'l Realty

Listing Office Phone: 312-751-0300



Listing data and photos distributed by MLSGRID
Member Participants (and their affiliated licensees, if applicable) shall indicate on their websites that IDX information is provided exclusively for consumers’ personal non-commercial use, that it may not be used for any purpose other than to identify prospective properties consumers may be interested in purchasing, that the data is deemed reliable but is not guaranteed by MLS GRID, and that the use of the MLS GRID Data may be subject to an end user license agreement prescribed by the Member Participant’s applicable MLS if any and as amended from time to time. MLS GRID may, at its discretion, require use of other disclaimers as necessary to protect Member Participant, and/or their MLS from liability.
Based on information submitted to the MLS GRID. All data is obtained from various sources and may not have been verified by broker or MLS GRID. Supplied Open House Information is subject to change without notice. All information should be independently reviewed and verified for accuracy. Properties may or may not be listed by the office/agent presenting the information.


Login to my Baird & Warner account

Pixel